Venue Specs
ASTORIA | Dresden
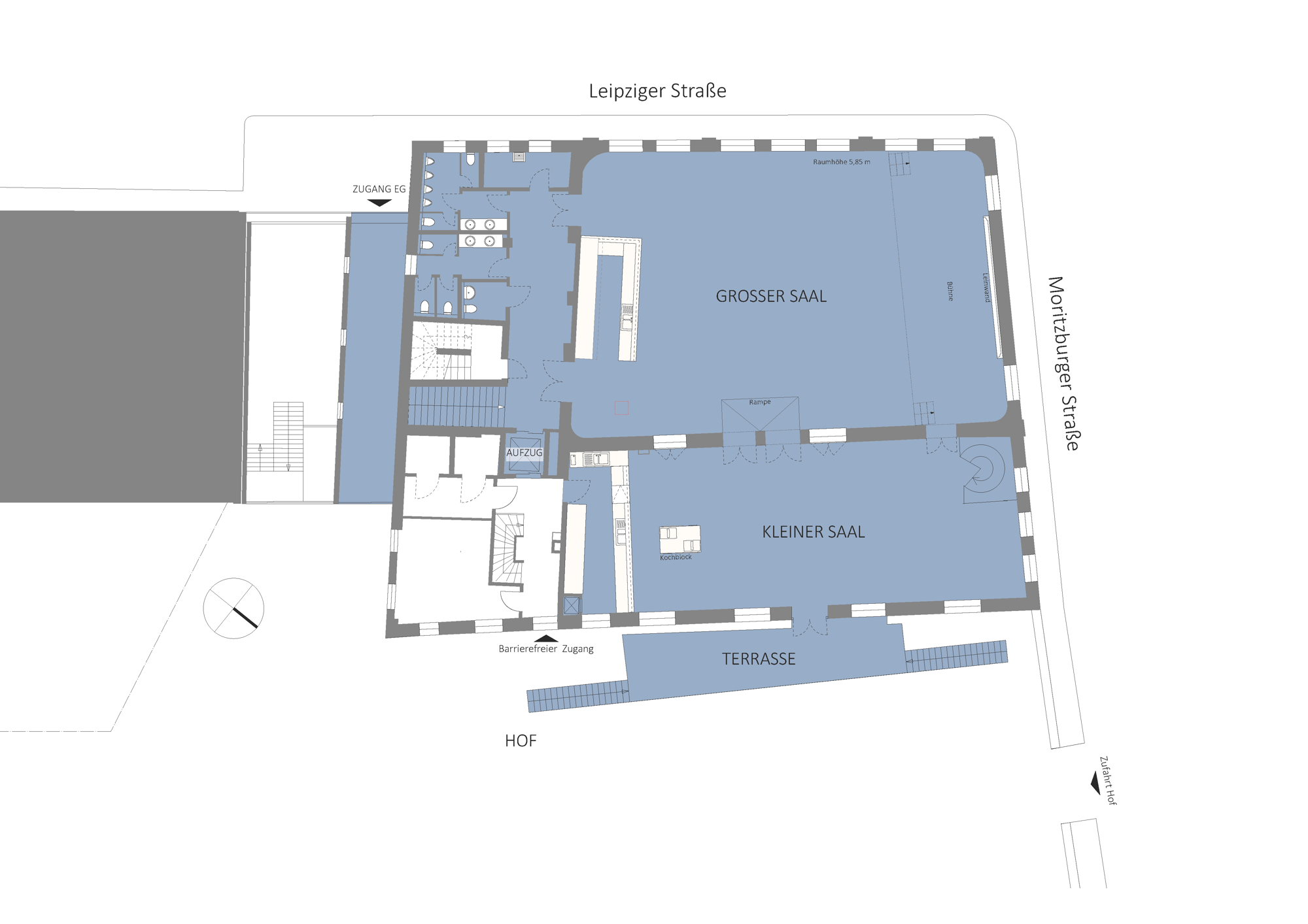
Venue
Veranstaltungsprofil
Der Raum für alles was bleibt: Mitten in der Stadt, mitten im Kopf: Das ASTORIA verbindet Geschichte mit Atmosphäre – und bietet Räume, die inspirieren. Ob Business-Event, Premierenfeier, Workshop, Hochzeit oder Pop-up-Konzert: Unsere modularen Flächen sind wandelbar, hochwertig ausgestattet und voller Charakter. Hier trifft Technik auf Gefühl, Kultur auf Kulinarik. Und Ihre Idee auf den passenden Raum.
Unsere Mietkonditionen gelten für die temporäre Überlassung der Veranstaltungsräume einschließlich der vereinbarten Nebenleistungen.
Alle Preise verstehen sich zzgl. der gesetzlichen Mehrwertsteuer, sofern nicht ausdrücklich anders gekennzeichnet.
Maßgeblich für die Durchführung sind ergänzend die Allgemeinen Geschäftsbedingungen (AGB) der ASTORIA Dresden.
Variable Kapazitäten
| Raum | unbestuhlt | Reihe | Bankett | Parlament |
| Großer Saal | 200 | 150 | 80 | 70 |
| Kleiner Saal | 120 | 80 | 50 | 40 |
| Glashaus | 20 | - | - | - |
Die maximale Personenzahl richtet sich nach dem jeweiligen Bestuhlungsplan.
Veranstaltungszeiträume
| Wochentag | Veranstaltungszeit |
| Sonntag bis Donnerstag | 09:00 bis 24:00 Uhr |
| Freitag, Samstag und vor Feiertagen | 09:00 bis 02:00 Uhr |
Abweichende Zeiten bedürfen der Vereinbarung.
Außn- und Terrassennutzung ist bis 22:00 Uhr zulässig.

Mietinformationen
Mietumfang und Grundbedingungen
Die Grundmiete umfasst:
• 6 Stunden Veranstaltungszeit ab Veranstaltungsbeginn
• 1 Stunde Aufbau
• 1 Stunde Abbau
• Technikpaket
• WLAN
• Strom- und Wasser
• Grundreinigung
Jede weitere angefangene Veranstaltungsstunde wird gesondert berechnet.
Auf- und Abbautage
Ein separater Aufbau- oder Abbautag ist nicht vorgesehen und nicht Bestandteil der Miete.
Sofern verfügbar, kann ein zusätzlicher Tag gegen 50 % der vereinbarten Hauptmiete gebucht werden.
Miete Großer Saal
Firmen / Agenturen / Institutionen: 1.875 € (entspricht 12,50 € x 150 Pax)
Privatveranstaltungen: 1.500 €
Konzertveranstalter: 750 € (entspricht 5,00 € x 150 Pax)
Zusätzliche Stunde: 150 €
Kleiner Saal
Firmen / Agenturen / Institutionen: 750 € (entspricht 12,50 € x 60 Pax)
Privatveranstaltungen: 500 €
Zusätzliche Stunde: 80 €
Glashaus
Firmen / Agenturen / Institutionen: 250 € (entspricht 12,50 € x 20 Pax)
Privatveranstaltungen: 200 €
Zusätzliche Stunde: 50 €
Gemeinnützig
Projekte mit kultureller und gesellschaftlicher Relevanz fördern wir durch gesonderte, unterstützende Konditionen.
Getränke
Getränke sind ausschließlich über das ASTORIA zu beziehen.
Ein Korkgeldmodell ist nicht vorgesehen.
Die Abrechnung erfolgt wahlweise:
a) Nach tatsächlichem Verbrauch
oder
b) Über eine Getränkepauschale
Getränkepauschale 34 € pro Person
(Bier, Wein, alkoholfreie Getränke, Kaffee)
Erweiterte Pakete sind auf Anfrage möglich.
Catering
Gerne erstellen unsere Hauscaterer ein individuelles Angebot.
Eigenes Catering ist nur nach vorheriger schriftlicher Zustimmung zulässig.
Bei Fremdcatering gilt:
• Miete Küchennutzung: 200 €
• zzgl. 10 % Umsatzbeteiligung
Ausstattung (Geschirr, Besteck, Tischwäsche etc.) kann optional gebucht werden (ab 9 € pro Person).
Veranstaltungstechnik
In der Grundmiete enthalten:
• Beschallungsanlage (Indoor)
• Hauslicht
• Beamer (HDMI)
• Garderobennutzung
Zusatzleistungen:
Gerne erstellen unsere Technikpartner individuelle Angebote.
Personal
Mindestbuchungszeit: 6 Stunden
Abendleitung 290 €
Service-/Barpersonal 32 €/h
Technische Hands 38 €/h
Einlasspersonal 38 €/h
Security 38 €/h
Die erforderliche Anzahl des Personals richtet sich nach Art und Größe der Veranstaltung.
Reinigung und Schäden
Die Grundreinigung ist in der Miete enthalten.
Zusätzliche Kosten entstehen bei:
Zusätzliche Toilettenreinigung 60 €/h
Außergewöhnliche Verschmutzung
Verstoß gegen Veranstaltungsregeln (z. B. Konfetti) ab 750 €
Der Veranstalter haftet für alle während der Mietzeit verursachten Schäden.
Sonstiges
Zahlungsbedingungen
• 50 % Anzahlung bei Vertragsabschluss
• Restzahlung 14 Tage vor Veranstaltungsbeginn
• Kaution 1.000
Abgaben und Genehmigungen
Der Veranstalter trägt:
• GEMA
• Künstlersozialkasse (KSK)
• sonstige behördliche Genehmigungen
Stornierung
Die Stornobedingungen ergeben sich aus den Allgemeinen Geschäftsbedingungen ASTORIA (Link) .
Green Event
Wir möchten gemeinsam mit Euch zukunftsorientierte, nachhaltige und sozialverträgliche Events veranstalten, die u.a. die folgenden Kriterien bereits beinhalten bzw. zukünftig umfassen sollten:
- Umweltfreundliche An- und Abreise.
- Barrierefreie Gestaltung.
- Ausstattung mit ressourcensparender Technik und Beleuchtung sowie Verwendung ressourcensparender Energiequellen.
- Einsatz nachhaltiger Reinigungs- und Sanitärmittel.
- Regionales Speisen- und Getränkeangebot für Besucher:innen und Künstler:innen.
- Vermeidung, Reduktion und Trennung des Abfallaufkommens.
- Möglicher Verzicht auf Special-Effects wie Luftschlangen, Konfetti und Feuerwerk.
- Schaffung einer fairen und nachhaltigen Unternehmenskultur, die gerecht und zukunftsfähig ist.
Kontakt
Vertragspartner
PAN Veranstaltungslogistik und Kulturgastronomie GmbH
Leipziger Straße 58
01127 Dresden
info@filmnaechte.de